Projects

We undertake highway consultant services for planning applications nationwide, and are currently working on developments in; Leicestershire, Rutland, Derbyshire, Nottinghamshire, Milton Keynes, Central Bedfordshire, Buckinghamshire, Northamptonshire, Hertfordshire, Lancashire and Lincolnshire. 

Some recent projects we have been involved with are as follows: 

Red Bull Racing, 
Milton Keynes

Proposal: Multi-Storey Car Park

Red Bull Racing, the 2023 Formula 1 World Champions, commissioned us to carry out a Transport Assessment for a proposed 400-space car park at their headquarters in Milton Keynes. Off-site junction assessments were conducted to evaluate the impact of the car park on the surrounding highway network, with planning permission granted in September 2023. Since then, Red Bull Racing has retained our services for further development at their headquarters and has also engaged us to support their sister team, Scuderia AlphaTauri. 

Ibstock School, Leicestershire

Proposal: School/Car Park Extension

We were instructed by Ibstock School to prepare a Transport Statement and access design in support of a proposed teaching block extension and new staff car park. Given the constraints at the car park access, we liaised closely with the Highway Authority to develop a suitable design that would avoid severe impacts on existing highway users, while also taking account of the wider project budget. Planning permission was granted in September 2025. We also prepared a Travel Plan which has since been adopted by the school.

Gaulby Road, Billesdon Leicestershire

Proposal: 48 Dwellings & New School Car Park

A housebuilder client appointed us to prepare a Transport Statement in support of a residential development comprising 48 dwellings and a new school car park on land to the north and south of Gaulby Road, Billesdon. While local residents raised concerns regarding the potential traffic impacts of the proposals, we demonstrated through transport modelling that the development would result in negligible effects on the local highway network. Planning permission was granted on appeal in February 2025.

Furnace Road, Ilkeston, Derbyshire

Proposal: 250x Storage Containers & 57x Storage Units

We were appointed to prepare a Transport Statement to assess the transport impacts of a proposed storage site in Ilkeston, replacing a former industrial unit on the site. Using the TRICS database, we demonstrated that the proposed use would generate negligible additional traffic when compared with the previously consented land use. Planning permission was subsequently granted by Erewash Borough Council in May 2025.

Dearne Valley Parkway, Birdwell, Barnsley

Proposal: 7x Industrial Units

A long standing client instructed us to undertake a Transport Assessment and Framework Travel Plan associated with the highway impacts for a commercial industrial estate in Barnsley. Scoping discussions with both the Local Authority and National Highways outlined detailed modelling of the surrounding highway network would be required, which included Junction 36 of the M1, and the Birdwell Roundabout. Planning permission was granted in April 2024.

Red Rose Garage, Preston

Proposal: B8 Storage Units

A new client appointed us to prepare a Transport Statement to assess the transport impacts of a proposed development of storage units, replacing an existing car dealership. We also supported the architect in developing the proposed parking and servicing arrangements, including swept-path analysis to demonstrate that delivery vehicles could safely manoeuvre within the site. Planning permission was granted in April 2025.

Scald End Farm, Thurleigh, Bedford

Proposal: Ambulance Depot

We were commissioned by a planning consultant to undertake a Highway Assessment in support of a proposed ambulance depot, replacing an existing café building on the site. As part of the assessment, we worked closely with the appointed architect to define suitable parking and servicing arrangements to ensure safe vehicle manoeuvrability, and to demonstrate that the existing site access was adequate for the anticipated level of use. Planning permission was granted by Bedford Borough Council in February 2025.

Loughborough Road,
West Bridgford, Notts

Proposal: Offices to 17x Apartments

A local developer appointed us to prepare a Transport Statement to assess the transport implications of a change of use from offices to 17 apartments. Although the proposal could not provide on-site parking in accordance with adopted standards, we demonstrated that the site’s highly sustainable location, together with anticipated car ownership levels, would not result in an adverse impact on the public highway. Planning permission was subsequently granted in March 2025.

Alderford Parade, Manchester

Proposal: 70 Dwellings

We were commissioned by an architectural practice to prepare a Transport Statement and Travel Plan in support of a proposed residential development comprising 70 dwellings across three separate land parcels in Manchester. As part of the assessment, we demonstrated that the site’s sustainable location meant that no off-site highway assessment was required, including junction capacity or car parking assessments. Planning permission was granted in January 2025.

Lamledge Lane, Shifnal, Shropshire

Proposal: 47x Bed Care Home

Having previously assisted the client in securing planning permission for six bungalows on the site, we were subsequently appointed to prepare a Transport Statement and Travel Plan in support of a proposed 47-bed care home. The assessment demonstrated that safe and suitable access for all users could be achieved in accordance with local and national planning policy. Planning permission was granted by Shropshire Council in December 2025.

New John Street, Birmingham

Proposal: Commercial Units & Community Use

A long-standing architectural client commissioned us to prepare a Transport Note in response to a highway consultation, assessing the parking implications of a proposed change of use from a tyre fitting garage to commercial units and community use. We also prepared a parking layout drawing and associated management strategy to ensure that the development would result in negligible impacts on the surrounding highway network. Planning permission was granted by Birmingham City Council in October 2025.

The Auchentiber BESS, Scotland

Proposal: Battery Energy Storage System (BESS)

In collaboration with a sustainable energy company, we conducted a Transport Assessment to evaluate the highway impacts of a 700MW Battery Energy Storage System (BESS) located south of Port Glasgow, Inverclyde. We outlined appropriate off-site mitigation measures to ensure construction traffic could access the site. Planning permission was granted in September 2024, marking this as the largest planning consent for a stand-alone BESS in Scotland to date.

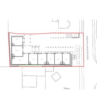
Preston Bus Depot, Preston

Proposal: Redevelopment Of The Preston Bus Depot

We were commissioned by Preston Bus Ltd to undertake a Transport Assessment which will see the redevelopment of the Preston Bus Depot. The proposals include for a new depot building and workshops to improve bus service operations within the City. We have been retained by Preston Bus Ltd to undertake further highway work associated with surplus buildings at the site for both residential and commercial use.

Drayton Street, Wolverhampton

Proposal: 42x Apartments, Retail Unit & Residents Gym

Our architect client required a Transport Statement and Travel Plan to support a proposed residential development in Wolverhampton, consisting of 42 apartments, a convenience retail unit, and a residents' gym. The reports were designed to highlight the sustainable surroundings, while also proposing measures to reduce single-occupancy car trips. Planning permission was granted in October 2024.

Worksop Fire Station, Nottinghamshire

Proposal: Change In Use To Specialist Day Centre

We were instructed by Autism East Midlands to undertake a Transport Statement, and Car Parking Layout drawing for a change of use planning application. We were able to demonstrate that the change in use to a specialist adult day-care and activity centre would not result in a severe impact upon the local highway network. Planning permission was granted in September 2023.

Land At Pit Lane, Ketton, Rutland

Proposal: Industrial Estate (2,865sq.m)

A Transport Statement was requested by Rutland County Council to support an industrial estate development, comprising 24 small industrial units. We undertook this report which included a formal assessment of an off-site junction to confirm the development would have negligible impacts upon its operation. Planning permission was granted in July 2023.

Well Street Centre, Buckingham

Proposal: Sixth Form School

We were instructed by Buckinghamshire Council to prepare a Transport Statement for a planning application involving a change of use from a Day Centre to a Sixth Form School. Our contribution focused on addressing parking limitations on-site and proposing improvements to optimise the available space. Planning permission was granted in May 2024.

The Old Rectory, Braithwell, Rotherham

Proposal: SEN School

The proposed change of use from a large residential property to a school for children with learning difficulties required a Transport Statement, Access Design, and Topographical Survey to ensure minimal impact on the highway. An off-site junction assessment was conducted to demonstrate that traffic generated by the school would not significantly affect commuter times. Planning permission was granted in June 2024.

The George Hotel, Sheep Street, Kettering

Proposal: 36 Apartments

Our long-term developer client tasked us with preparing a Transport Statement and Travel Plan for the conversion of a hotel into 36 apartments. As part of the assessment, we demonstrated that the site's sustainable location and the availability of off-site parking would prevent parking overspill onto the highway. Planning permission was granted in May 2024.

Darwin Drive, Ollerton, Nottinghamshire

Proposal: 105 Bed Care Home

Nottinghamshire County Council initially required a Transport Assessment and Travel Plan to assess the highway impacts of a 105-bed care home. Due to the client's time constraints, we successfully negotiated with the council to submit a shorter Technical Note to address their concerns, with the Travel Plan conditioned upon the planning approval. As the proposal was outline, we addressed the highway issues within the Technical Note, and planning permission was granted in May 2024.

St Germain Street, Farnworth, Bolton

Proposal: 36x Apartments

The proposal involved demolishing an existing martial arts building to develop a three-story building with 36 apartments. As part of the Transport Statement, we collaborated closely with the architect to ensure the on-site parking arrangements would accommodate both residents' vehicles and delivery vehicles. Planning permission was granted in August 2024.

The Kettering Vets, Northamptonshire

Proposal: Surgery Extension

We were approached by The Kettering Vets to undertake a Transport Statement for an extension to their veterinary surgery. As part of our work, we provided a suitable car parking layout to maximise available space for both staff and visitor parking. Planning permission was granted in May 2023.

Arts1 Limited, 
Danbury Court, 
Milton Keynes

Proposal: Specialist Theatre School

A specialist Theatre School required a Transport Statement and Travel Plan for a change in use planning application for a new premise in Milton Keynes. We provided these reports, demonstrating that vehicle movements associated with school operations would not result in a severe impact upon local junctions. Planning permission was granted in November 2023.

Great Central Road, Loughborough, Leicestershire

Proposal: Nine Flats

A local developer commissioned us to prepare a Transport Statement to assess the highway impacts of a proposed development that would replace a research and development facility with nine flats. We provided evidence on expected parking demand to ensure adequate off-street parking provisions. Planning permission was granted in July 2024.

Midville Road, Stickney, 
Lincolnshire

Proposal: Four Holiday Lodges & Restaurant

We were commissioned by our architect client to produce a Transport Statement associated with a leisure development comprising four holiday lodges and a restaurant. As part of the highway work undertaken, we were able to demonstrate that sufficient off-road vehicle parking was available within the site to appease highway concerns. Planning permission was subsequently granted at the site in November 2022.

Berry Cranes, Towcester, Northamptonshire

Proposal: Additional Workshop & Offices

A business in Northamptonshire operating mobile cranes commissioned us to address concerns raised by National Highways in relation to the redevelopment of their headquarters, which takes access via the A5 (Strategic Road Network). Through the preparation of a highway technical note with supporting drawings, we were able to address the concerns of National Highways resulting in no objections.

Home Page

Services

Contact Us

We need your consent to load the translations

We use a third-party service to translate the website content that may collect data about your activity. Please review the details in the privacy policy and accept the service to view the translations.